CentraLane Kelowna


Project Type
Infill Fast-Track Design

Status
Fast Track Design (Standardized Designs, Pre-Approved Designs)

Location
Kelowna, BC

FSR
1.02

Number of Units
6

Total Residential Unit Area

9,198 sf


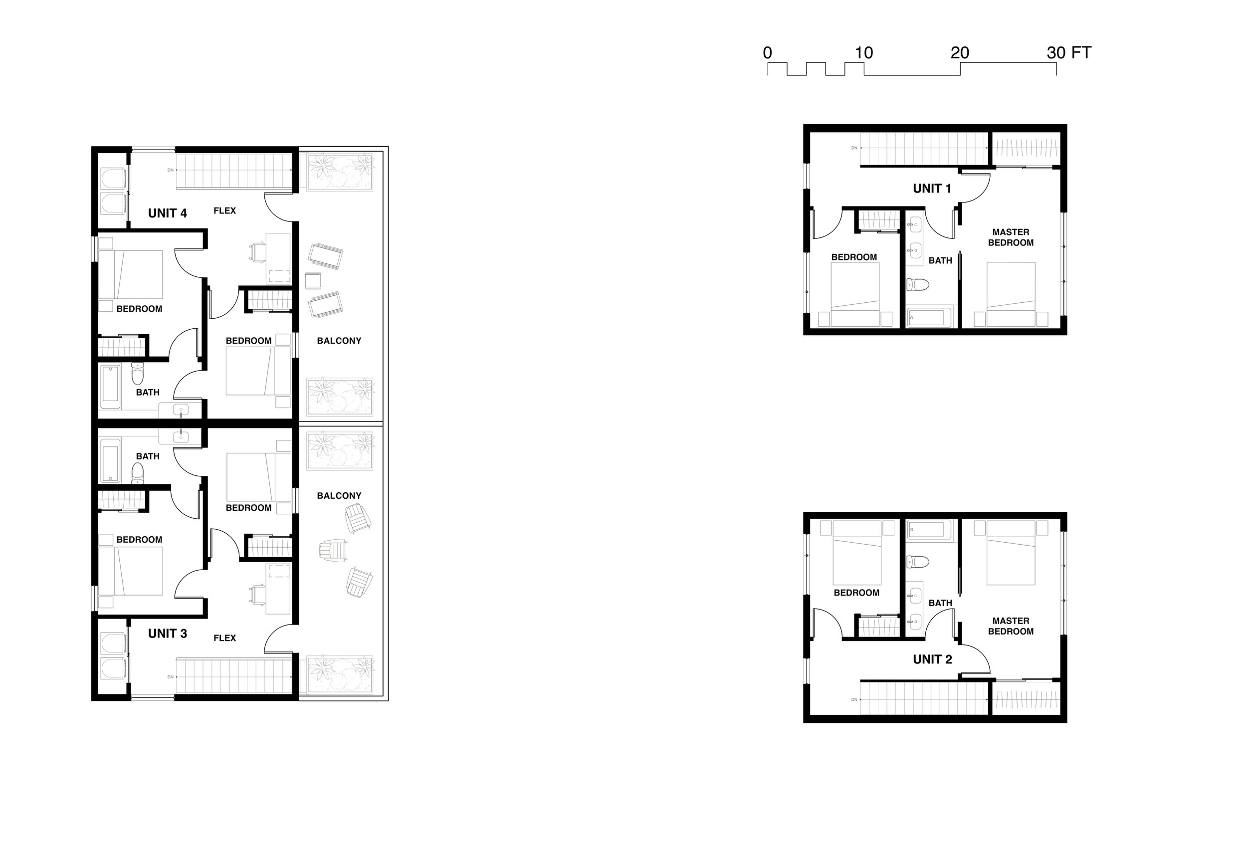
CentraLane is a thoughtfully designed multiplex concept for Kelowna, organized around a refined courtyard typology with a central driveway approach. Six generously sized, family-oriented homes are distributed across three distinct buildings, creating a balanced sense of privacy and community. Each residence includes a dedicated parking space, private ground-level outdoor patio space, and expansive upper-level balconies. The design prioritizes livability, efficient site use, and affordable constructability.

Tailor this design to fit my site
 

 
 
 
 
 

Policy Background

Haeccity Studio Architecture worked with the City of Kelowna to develop a series of standardized, pre-designed housing models for the Infill Housing Fast-Track program.

Building on the City’s SSMUH framework and pre-approved design approach, we created adaptable, construction-ready prototypes that respond to common lot conditions and infill scenarios. Each design is coordinated to align with zoning, BC Building Code requirements, and typical permitting considerations — helping reduce redesign, uncertainty, and approval timelines.

With experience across both Part 9 and Part 3 projects, we focused on the practical realities of small-scale housing: efficient layouts, straightforward assemblies, and clear compliance pathways. Working closely with City staff, the designs were refined to support a smoother review process and make Fast-Track participation more predictable for builders and homeowners.

The result is a set of buildable, code-aligned housing options that balance speed, cost control, and design quality - helping deliver more infill homes, faster.

For more information, contact us here.

 

Previous
Previous

Twin Peaks Kelowna

Next
Next

Lee’s Donuts Lower Lonsdale