Twin Peaks Kelowna


Project Type
Infill Fast-Track Design

Status
Fast Track Design (Standardized Designs Pre-Approved)

Location
Kelowna, BC

FSR
1.14

Number of Units
6

Total Residential Unit Area

9,324 sf


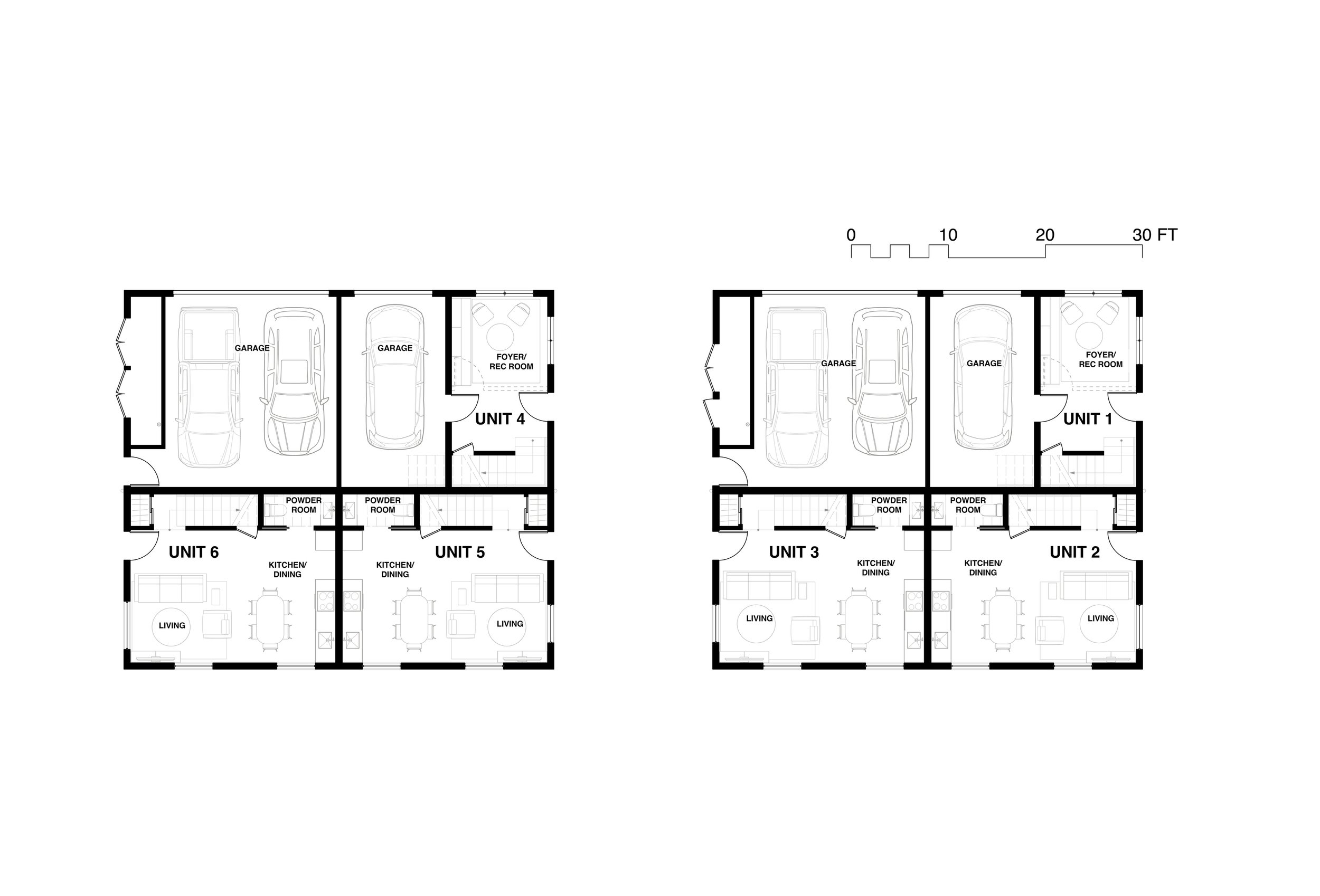
Twin Peaks offers a two-building courtyard typology featuring a single access driveway along one side yard. Each building contains three units, each with their own enclosed parking stall. Units are all family-friendly, with a minimum of 2 bedrooms plus den. All units have private ground oriented entrances and fenced yards for children and fur babies, as well as private covered roof patios for enjoying sunset views.

Tailor this design to fit my site

 
 
 
 
 

Policy Background

Haeccity Studio Architecture worked with the City of Kelowna to develop a series of standardized, pre-designed housing models for the Infill Housing Fast-Track program.

Building on the City’s SSMUH framework and pre-approved design approach, we created adaptable, construction-ready prototypes that respond to common lot conditions and infill scenarios. Each design is coordinated to align with zoning, BC Building Code requirements, and typical permitting considerations — helping reduce redesign, uncertainty, and approval timelines.

With experience across both Part 9 and Part 3 projects, we focused on the practical realities of small-scale housing: efficient layouts, straightforward assemblies, and clear compliance pathways. Working closely with City staff, the designs were refined to support a smoother review process and make Fast-Track participation more predictable for builders and homeowners.

The result is a set of buildable, code-aligned housing options that balance speed, cost control, and design quality - helping deliver more infill homes, faster.

For more information, contact us here.

 

Next
Next

CentraLane Kelowna